One Shot One Home vende capannone a Floridia

Floridia - Capannone in vendita
1.250.000 €
Caratteristiche principali
1400 m²
Superficie
10
Locali
Descrizione
🏢 IN VENDITA / IN AFFITTO – IMMOBILE COMMERCIALE / ARTIGIANALE / LOGISTICO DI NUOVA COSTRUZIONE
📍 Posizione
In zona strategica, a pochi minuti dallo svincolo autostradale, con ottima visibilità e facile accesso per mezzi pesanti e clientela commerciale.
Posizione ideale per attività produttive, commerciali e logistiche.
🏗️ Descrizione dell’Immobile
Nuova costruzione con possibilità di personalizzazione degli spazi, finiture e impianti in base alle esigenze dell’attività.
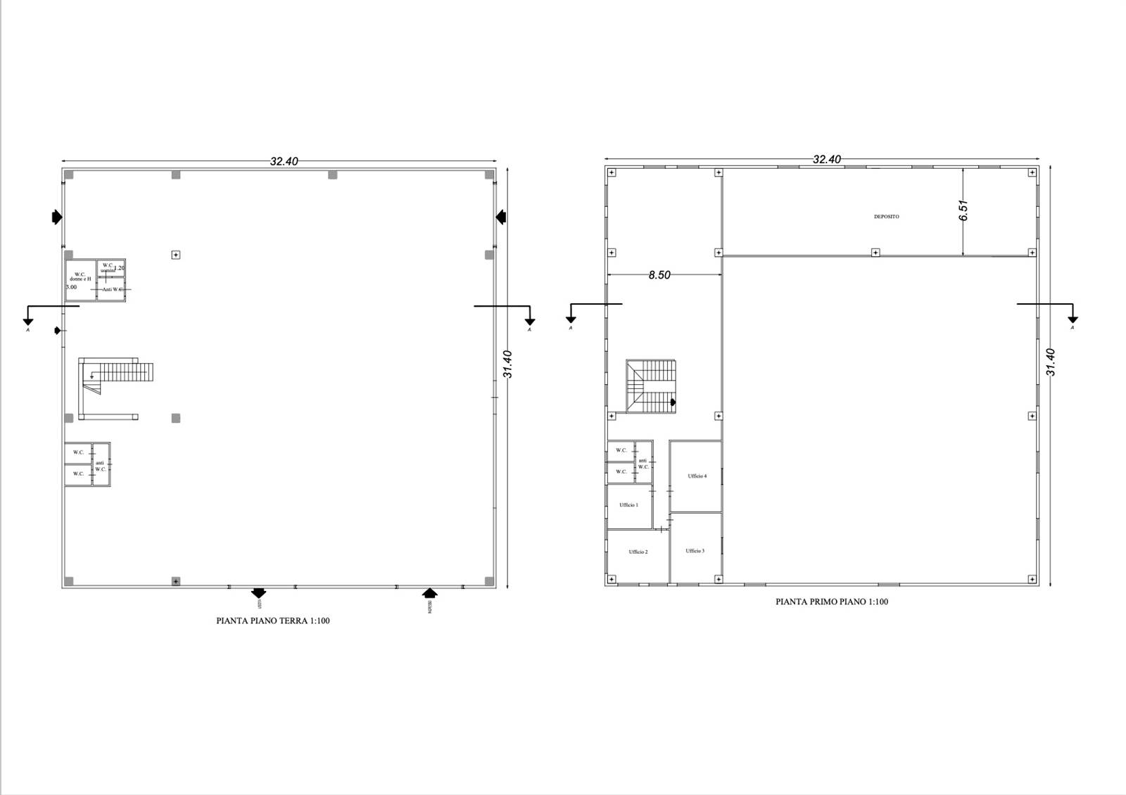
Superficie complessiva: 1.400 mq su due livelli
Piano terra (1.000 mq): ampio open space per produzione o esposizione, altezza max 9,60 m
Primo piano (400 mq):
100 mq uffici
300 mq deposito o uffici tecnici
Portata solaio: 600 Kg/mq
Area esterna: 1.300 mq completamente recintati, ideale come parcheggio o area di manovra.
Impianto fotovoltaico: 100 kW installati sul tetto per massima efficienza energetica.
Classe energetica: in corso di definizione (impianti a basso consumo).
⚙️ Caratteristiche Tecniche e Dotazioni
Struttura moderna e antisismica
Predisposizione per impianti industriali e commerciali
PossibilitĂ  di installare carroponte (altezza max 9,60 m)
Uffici modulabili e spazi espositivi personalizzabili
Accessi carrabili indipendenti e alta visibilitĂ 
Ampia area esterna recintata
Impianto fotovoltaico 100 kW
Possibilità di usufruire di agevolazione ZES con credito d’imposta fino al 70% del valore
🏬 Ideale per
Aziende di produzione e trasformazione
Attività commerciali, showroom o punti vendita all’ingrosso
Laboratori artigianali con uffici integrati, Magazzini e centri logistici.

Caratteristiche
Codice:
V422
CittĂ :
Floridia
Categoria:
Capannone
Locali:
10
Mq:
1400
Classe energetica:
G
Stato Immobile:
Nuovo
Lati Liberi:
4
Accessori
Cancello Elettrico
Doppio ingresso
ImpiantoFotovoltaico
Planimetrie
Mappa
Via Paolo Borsellino - Floridia (SR)
Cookie preference